Starlake The Prime (phân khu K8) là dự án căn hộ hạng sang thuộc giai đoạn 2 của đại đô thị Starlake Tây Hồ Tây, một trong những dự án đô thị lớn, được quy hoạch bài bản với hồ điều hòa, mảng xanh và hệ thống tiện ích đồng bộ.
The Prime được giới thiệu là dòng sản phẩm “5 sao” của Starlake, gồm 2 phân khu chính (K8HH1 & K8CT1) với tổ hợp nhiều tòa căn hộ, tòa văn phòng và các tiện ích nội khu tiêu chuẩn cao cấp.
Dự án gồm khoảng 960 căn hộ cao cấp trên 3 tháp (2 tháp căn hộ E & F và 1 tháp văn phòng), với thiết kế tường kính hiện đại và hệ thống smarthome thông minh. Đây là sự kết tinh của tiêu chuẩn quốc tế, hướng tới cư dân thượng lưu tìm kiếm sự tiện nghi, riêng tư và giá trị đầu tư dài hạn
Với sự kết hợp giữa tinh hoa kiến trúc Hàn Quốc và vị thế độc tôn, dự án The Prime Starlake Tây Hồ Tây đang thiết lập một tiêu chuẩn sống thượng lưu hoàn toàn mới cho giới tinh hoa Hà Nội.






Phối cảnh dự án Starlake The Prime
- Tên dự án: Starlake The Prime
- Vị trí: Lô đất K8HH1 và K8CT1, KĐT Starlake Tây Hồ Tây, Hà Nội
- Chủ đầu tư: Tập đoàn Daewoo E&C (Hàn Quốc) và Công ty TNHH Phát triển THT
- Quy mô đất: 15.678 m2
- Quy mô: Bao gồm các tòa tháp cao 23–26 tầng.
- Loại hình sản phẩm: Căn hộ cao cấp (1–4 phòng ngủ), Penthouse, Văn phòng và Shophouse khối đế.
- Hình thức sở hữu: Sổ hồng lâu dài (đối với người Việt Nam)
Vị trí - Hạ tầng
Tọa lạc tại tâm điểm của khu đô thị Tây Hồ Tây - Starlake Hà Nội (quận Tây Hồ, Hà Nội), The Prime sở hữu vị trí "tọa sơn hướng thủy" ngay cạnh Hồ Tây lộng gió. Đây là khu vực hiếm hoi tại nội đô còn giữ được không gian thoáng đãng cùng hạ tầng giao thông hiện đại bậc nhất.
- Kết nối vùng hoàn hảo: Dự án nằm trên trục đường kết nối trực tiếp ra Võ Chí Công và Nguyễn Văn Huyên kéo dài, kết nối trực tiếp với các trục huyết mạch như Hoàng Quốc Việt, Phạm Văn Đồng và Vành đai 2, 2.5. Từ đây, cư dân chỉ mất 5 phút để ra đến Hồ Tây, 15 phút đến hồ Hoàn Kiếm và 20 phút để di chuyển tới sân bay quốc tế Nội Bài.
- Trung tâm hành chính mới: Bao quanh dự án là trụ sở của 8 Bộ ngành và 13 đại sứ quán, tạo nên một khu vực an ninh nghiêm ngặt và cộng đồng dân trí cao.
- Tầm nhìn "triệu đô": Phần lớn các căn hộ tại The Prime sở hữu tầm nhìn trực diện ra Hồ Tây hoặc hồ điều hòa nội khu rộng 4,5ha, mang lại luồng sinh khí và sự thư thái tuyệt đối.

Vị trí Starlake The Prime
Tiện ích
Sống tại chung cư Starlake The Prime, cư dân có thể tận hưởng hệ sinh thái tiện ích kép: tiện ích nội khu biệt lập và tiện ích chung của đại đô thị đẳng cấp quốc tế.
- Tiện ích nội khu 5 sao: Bể bơi bốn mùa nước ấm, phòng tập Gym & Sauna hiện đại, sân tập Golf 3D, khu thể thao ngoài trời, Kidsclub, phòng đọc sách, lounge, cảnh quan xanh, thư viện số, không gian sinh hoạt cộng đồng và khu vui chơi trẻ em an toàn.
- Hệ thống lọc nước 3 lớp: Một điểm nhấn độc bản của dự án là hệ thống lọc nước tổng (lọc thô, carbon và khử trùng) đảm bảo nguồn nước sinh hoạt đạt chuẩn tinh khiết tại vòi.
- Mua sắm và giải trí: Liền kề Lotte Mall Tây Hồ, Emart và Thiso Mall, đáp ứng mọi nhu cầu mua sắm, ẩm thực cao cấp chỉ trong vài bước chân.
- Giáo dục quốc tế: Gần kề các trường học danh tiếng như Dewey International School, UNIS và các trường quốc tế hàng đầu khu vực Ngoại Giao Đoàn.
Mỗi căn hộ The Prime Starlake được trang bị smarthome đầy đủ: điều khiển điều hòa, ánh sáng, chuông cửa hình, gọi thang máy và chế độ tiết kiệm năng lượng.





























Tiện ích dự án Starlake The Prime
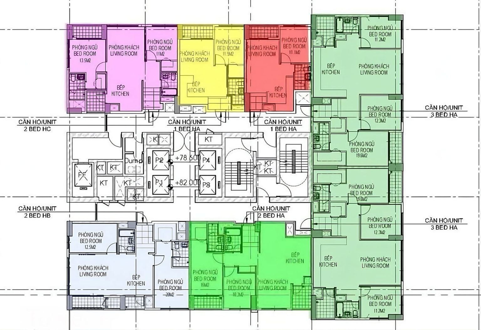
Mặt bằng - Thiết kế
Starlake The Prime Tây Hồ Tây là phân khu thuộc đại đô thị Starlake Tây Hồ Tây, tọa lạc tại lô K8 (bao gồm K8HH1 & K8CT1) với quy mô lớn, mật độ xây dựng thấp và nhiều mảng xanh.
Lô K8HH1 (chính thức khởi công vào ngày 25/11/2024):
- Quy mô dự án: khoảng 15.678 m² đất, mật độ xây dựng ~31,95%.
- Tổng diện tích xây dựng: 113.302m2
- Gồm 3 tháp cao tầng: 2 tháp căn hộ (E & F) cao 26 tầng, 1 tháp văn phòng cao 20 tầng.
- Tổng số 284 căn hộ cao cấp + 2 tầng hầm đỗ xe lớn.
- Mật độ căn hộ: 6 căn/sàn (tòa E); 7 căn/sàn (tòa F)
Lô K8CT1 (đã khởi công vào tháng 10/2025):
- Diện tích đất: 23.168m2
- Diện tích xây dựng khoảng 7.250m2
- Gồm 4 tháp căn hộ cao khoảng 23 tầng
- Mật độ xây dựng: 31.31%
- Số lượng căn hộ: 656 căn
Dự án hình thành cụm tháp hiện đại với khối đế thương mại (tầng 1-3), kết nối công viên trung tâm 0,6 ha giữa các tiểu khu, tối ưu hóa tầm view hồ Tây và thành phố. Hệ thống bãi đỗ xe thông minh đầy đủ: K8HH1 có 423 chỗ ô tô và 1.084 chỗ xe máy; K8CT1 có 690 chỗ ô tô và 2.071 chỗ xe máy, tích hợp nhận diện biển số tự động. Thiết kế curtain wall kính lớn bao quanh, đảm bảo đón sáng tự nhiên và cách nhiệt hiệu quả.
Thiết kế dự án mang đậm triết lý "Prugio Summit" của Daewoo E&C – tập trung vào sự tinh giản, hiện đại và đẳng cấp, theo phong cách Hàn Quốc tối giản, chiều cao trần 2,8m, không gian mở nối liền phòng khách - bếp - ăn, kết hợp smarthome điều khiển trung tâm (điều hòa, đèn, thang máy). Các loại căn phổ biến bao gồm: 2PN (75-95m2), 3PN (105-130m2, ví dụ loại K: 124,81m2 tim tường với sinh hoạt chung 44,73m2), 4PN/Penthouse/Sky Villa (140-251m2, như loại O: 251,86m2 với sinh hoạt chung 85m2). Nội thất bàn giao cao cấp: tủ bếp, thiết bị bếp (bếp từ, hút mùi), vệ sinh TOTO/Kohler, logia khoa học đón gió tự nhiên và view 270 độ.


Mặt bằng Starlake The Prime





Căn hộ mẫu Starlake The Prime
Giá bán
Là dòng sản phẩm hạng sang tại khu vực đắt giá nhất Hà Nội, mức giá của Starlake The Prime phản ánh đúng giá trị và vị thế của chủ sở hữu.
- Đơn giá: Dao động từ 180 – 220 triệu VNĐ/m2 (tùy vị trí tòa, tầng và hướng view).
- Tổng giá trị căn hộ: Các căn hộ 1 phòng ngủ có giá từ 8 tỷ VNĐ, trong khi các căn hộ 3 phòng ngủ hoặc Penthouse có mức giá từ 18 tỷ VNĐ trở lên.
Lưu ý: Giá bán có thể thay đổi theo chính sách của chủ đầu tư và biến động thị trường tại thời điểm thực tế.
Chủ đầu tư
Tập đoàn Daewoo E&C là một trong những "ông lớn" trong ngành xây dựng tại Hàn Quốc với hơn 50 năm kinh nghiệm toàn cầu. Tại Việt Nam, Daewoo E&C đã khẳng định uy tín qua các công trình biểu tượng như khách sạn Daewoo, Daeha Business Center và chính đại đô thị Starlake. Sự góp mặt của Daewoo E&C là lời cam kết vững chắc nhất về chất lượng xây dựng, tiến độ và dịch vụ quản lý vận hành chuẩn quốc tế.
Để thực hiện dự án The Prime, Daewoo E&C đã hợp tác với Công ty TNHH Phát triển THT. Sự kết hợp này mang đến uy tín vượt trội, khẳng định cam kết "Prestige Life" và "Refined Living".
Tiến độ
Dự án The Prime Starlake Tây Hồ Tây đang trong giai đoạn thi công khung cấu trúc, với tổng thời gian xây dựng 23 tháng và mục tiêu bàn giao vào Quý 2/2027. Đến tháng 10/2025, tiến độ đạt kế hoạch, nhờ sự giám sát chặt chẽ từ Daewoo E&C Vina.







Hình ảnh thực tế tiến độ dự án Starlake The Prime tháng 11/2025
Đánh giá
Theo bất động sản odt, Starlake The Prime không dành cho số đông. Đây là dự án dành cho những người tìm kiếm sự riêng tư tuyệt đối, một cộng đồng cư dân tinh hoa và tiềm năng tăng giá bền vững nhờ quy hoạch dịch chuyển trung tâm hành chính về Tây Hồ Tây. Mặc dù mức giá thuộc hàng cao nhất thị trường, nhưng với những giá trị về vị trí, thương hiệu và tiện ích độc bản, đây vẫn là lựa chọn hàng đầu cho mục đích an cư lẫn đầu tư dài hạn.