Thông tin dự án Tòa nhà Petrowaco - 97 Láng Hạ
Tòa nhà Petrowaco - 97 Láng Hạ bao gồm văn phòng và các căn hộ cao cấp, được xây dựng tại ngã tư Láng Hạ và Thái Thịnh, dự án được thiết kế theo hướng hiện đại, hài hòa với môi trường.
Dự án đầu tư xây dựng lại khu tập thể số 97 Láng Hạ của Công ty CP Bất động sản Dầu Khí toạ lạc tại số 97 Láng Hạ, quận Đống Đa, TP. Hà Nội, nằm tại góc giao cắt giữa đường Láng Hạ và đường Thái Thịnh. Toà nhà là tổ hợp văn phòng và các căn hộ cao cấp được thiết kế theo phong cách hiện đại với những đường nét kiến trúc độc đáo, hài hoà.
- Tên dự án: Đầu tư xây dựng lại Khu tập thể số 97-99 Láng Hạ
- Tên thương mại: Petrowaco Tower
- Chủ Đầu tư: Công ty CP Bất động sản Dầu khí (Petrowaco)
- Hợp tác đầu tư: Tổng Công ty CP Xuất nhập khẩu & Xây dựng Việt Nam - Vinaconex
- Tư vấn giám sát: Công ty CP TEXO Tư vấn và Đầu tư
- Tư vấn thiết kế: Công ty CP Tư vấn Đầu tư và Thiết kế Xây dựng VN (CDC)
- Nhà thầu thi công: Tổng Công ty CP Xuất nhập khẩu & Xây dựng Việt Nam - Vinaconex
- Diện tích xây dựng: 1.480m2
- Tổng diện tích sàn: 40.675m2
- Diện tích sàn văn phòng và dịch vụ: 10.970m2
- Diện tích sàn nhà ở: 29.705m2
- Diện tích sàn tầng hầm: 9.882m2
- Số tầng cao: 27 tầng
- Số tầng hầm: 3 tầng
- Tổng mức đầu tư dự kiến (trước VAT): 603,8 tỷ đồng
- Bàn giao căn hộ: Dự kiến quý IV/2017

Phối cảnh tòa nhà Petrowaco - 97 Láng Hạ
Vị trí - Hạ tầng Tòa nhà Petrowaco - 97 Láng Hạ
Vị trí Tòa nhà Petrowaco - 97 Láng Hạ
Petrowaco Tower tọa lạc tại số 97 Láng Hạ, nằm tại góc giao cắt giữa đường Láng Hạ và đường Thái Thịnh. Tòa nhà là tổ hợp văn phòng và căn hộ cao cấp với những nét kiến trúc hiện đại, độc đáo.

Vị trí tòa nhà Petrowaco - 97 Láng Hạ
Hạ tầng Tòa nhà Petrowaco - 97 Láng Hạ
Tòa nhà Petrowaco - 97 Láng Hạ được thiết kế theo phong cách hiện đại, trang bị hệ thống thang máy cao cấp. Hệ thống điện dự phòng, hệ thống phòng cháy, chữa cháy theo tiêu chuẩn quốc tế. Tòa nhà có hệ thống quản lý chuyên nghiệp và dịch vụ giám sát an ninh 24/24, dịch vụ truyền hình cáp và internet tốc độ cao...



Các tiện ích tại tòa nhà Petrowaco - 97 Láng Hạ
Dự án tọa lạc tại vị trí 97 Láng Hạ, một vị trí sầm uất, gần các trung tâm thương mại, văn phòng và tòa nhà cao cấp.
Thiết kế - Mặt bằng
Thiết kế gồm văn phòng cho thuê và các căn hộ được bố trí tối ưu về công năng sử dụng. Tòa nhà cao 27 tầng: 7 tầng thương mại dịch vụ tiện ích, 20 tầng các căn hộ cao cấp từ 1 – 4 phòng ngủ. Đặc biệt dự án có tới 3 tầng hầm và 1 tầng dịch vụ cho toàn bộ dự án.
Diện tích từ 80 – 325 m2 được thiết kế tận dụng tối đa ánh sáng tự nhiên, không khí thiên nhiên chan hòa luôn theo bạn. Đến từng vị trí trong ngôi nhà khiến bạn luôn có cảm giác gần gũi với thiên nhiên tươi mát. Mang một phong cách thiết kế hiện đại, đem theo không khí xanh vào trong từng căn phòng trong ngôi nhà.
Nội thất từng phòng được thiết kế phù hợp với nhiều sở thích và cá tính của từng thành viên trong gia đình. Tạo cảm giác thích thú và thoải mái khi ở trong ngôi nhà của mình.
Cùng với những thiết kế hiện đại thì phòng bếp luôn mang đến cho bạn sự ấm cúng. Vì đó chính là nơi gia đình bạn sum họp và quây quần trong những bữa ăn.
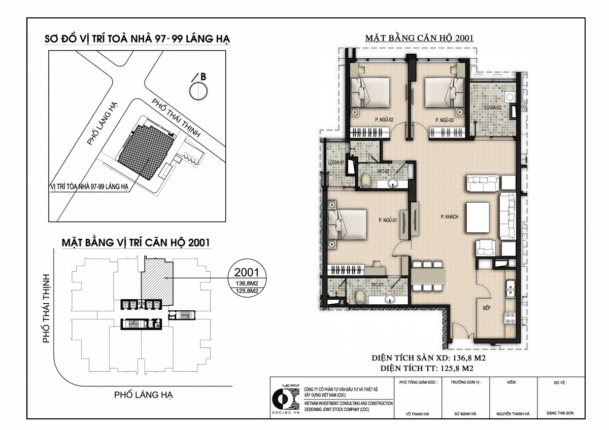
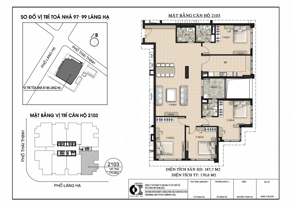
- Căn hộ 2 phòng ngủ: 45 -80m2
- Căn hộ 3 phòng ngủ: 100 – 180m2
- Căn Duplex thông tầng: 242 – 350m2






Chủ đầu tư Tòa nhà
Tổng công ty cổ phần xây lắp dầu khí Việt Nam (PVC) là thành viên của tập đoàn dầu khí quốc gia Việt Nam (PetroVietnam) - tập đoàn kinh tế hàng đầu đất nước.
Tổng công ty cổ phần xây lắp dầu khí Việt Nam đang nỗ lực vươn lên trở thành một doanh nghiệp xây lắp chuyển ngành, chủ lực của PetroVietnam, có trình độ quản lý và công nghệ mang tầm quốc tế trong xây lắp chuyên ngành dầu khí và các công trình công nghiệp dân dụng quy mô lớn.
Trưởng thành qua từng công trình, dự án, từ vai trò thầu phụ cho các nhà thầu quốc tế, PVC đã vươn lên trở thành Tổng thầu EPC thực hiện các công trình có quy mô ngày càng lớn, yêu cầu kỹ thuật phức tạp như: Tổng kho LPG Gò Dầu, nhà máy nhiệt điện Thái Bình II, nhiệt điện Nhơn Trạch II, nhà máy nhiên liện sinh học Ethanol Phú Thọ, nhà máy xơ sợi tổng hợp Polyeste Đình Vũ…
Các hoạt động chính