Phân khu The Icon (1A3) là khu biệt thự và dinh thự siêu cao cấp trong khu đô thị Swan Park (rộng 941ha) do chủ đầu tư SwanCity (Singapore) phát triển. The Icon nổi bật với tổng số 90 căn biệt thự, diện tích từ 680 m2 đến 1.000 m2, được thiết kế độc đáo với hồ bơi, sân vườn riêng và thang máy thương hiệu Thụy Sỹ.

Là phân khu thứ ba được triển khai trong khuôn khổ Khu đô thị Swan Park Đông Sài Gòn sở hữu thiết kế độc đáo, vị trí đẹp và tiện ích, The Icon Swan Park được định hướng là bộ sưu tập tuyệt phẩm nghệ thuật, một không gian sống đẳng cấp, biệt lập và là biểu tượng của sự sang trọng, tinh tế dành cho giới thượng lưu và khách hàng thành đạt.

The Icon

Phối cảnh The Icon

  • Tên dự án: The Icon (còn gọi là phân khu 1A3)
  • Chủ đầu tư: Swan City
  • Vị trí: Trong khu đô thị Swan Park, trên đường Tôn Đức Thắng, xã Long Tân, huyện Nhơn Trạch, Đồng Nai
  • Đơn vị xây dựng: Coteccons
  • Đơn vị thiết kế: UMiA
  • Quy mô dự án: 18ha
  • Loại hình: Super Villa & Mansion (biệt thự và dinh thự)
  • Tổng số sản phẩm: 90 căn
  • Các loại diện tích: 37 căn Super Villa diện tích 20x35m (680m2); 49 căn Mansion diện tích 30x35m (870m2); 4 căn Super Mansion diện tích 55x35m (1000m2)
  • Xây dựng: 1 trệt 2 lầu 
  • Sở hữu: lâu dài 
  • Thời gian xây dựng: Quý IV/2020 
  • Thời gian bàn giao: Quý II/2024

Vị trí - Hạ tầng 

Phân khu The Icon tọa lạc trong khu đô thị Swan Park tại đường Tôn Đức Thắng, xã Long Tân, huyện Nhơn Trạch, tỉnh Đồng Nai. Vị trí này nằm trong khu vực cửa ngõ phía Đông TP.HCM, gần các tuyến giao thông quan trọng như đường Mai Chí Thọ, cao tốc Long Thành – Dầu Giây và phà Cát Lái, giúp kết nối dễ dàng về TP.HCM và các khu vực lân cận. Từ The Icon, cư dân chỉ mất khoảng 30-40 phút di chuyển đến trung tâm TP.HCM qua các tuyến đường hiện hữu và đang được nâng cấp như nút giao thông 319.

Cư dân Swan Park The Icon dễ dàng di chuyển và tiếp cận các tuyến đường, khu vực trọng điểm: 

  • 16km đến sân bay Long Thành qua đường 25C
  • 12-13km đến cao tốc Long Thành - Dầu Giây qua đường 319
  • 8km đến KCN Nhơn Trạch 1,2 
  • 14km đến TT Long Thành 
  • 32km đến cửa ngõ TP Biên Hoà 

The Icon Swan Park Đồng Nai có vị trí đẹp, riêng biệt trong tổng thể khu đô thị Swan Park rộng lớn, thừa hưởng nhiều tiện ích cũng như hệ sinh thái xanh mát trong khu đô thị. Đây được đánh giá là vị trí đắc địa, có tính biểu tượng cao ở khu vực Nhơn Trạch, Đồng Nai, đặc biệt phù hợp cho giới thượng lưu tìm nơi an cư với môi trường sống cao cấp và cảnh quan thiên nhiên rộng lớn.

The Icon

The Icon

Vị trí The Icon

TƯ VẤN - BÁO GIÁ
Bạn là:

Tiện ích 

Phân khu The Icon Swan Park tích hợp hệ thống tiện ích đẳng cấp và đa dạng, trong đó nổi bật nhất là clubhouse rộng 1,6 ha ngay trung tâm dự án với hồ bơi trên tầng mái, hồ bơi trong nhà và ngoài trời, sảnh chờ sang trọng, phòng gym, sân tennis, quầy rượu whiskey và phòng cigar cho cộng đồng cư dân thượng lưu. Khu clubhouse được thiết kế âm dưới lòng đất như thủy cung với kiến trúc nghệ thuật đậm chất, tạo không gian thư giãn, giao lưu cao cấp cho cư dân.

Ngoài tiện ích riêng của phân khu, cư dân The Icon còn thừa hưởng đầy đủ tiện ích quy mô lớn của khu đô thị Swan Park như trung tâm thương mại mua sắm, hệ thống 16 trường học quốc tế, bệnh viện đa khoa quốc tế, chợ đêm, công viên nước, khu vườn nghệ thuật và nhiều dịch vụ giải trí, chăm sóc sức khỏe cao cấp.

The Icon Swan Park còn chú trọng phát triển môi trường sống xanh sạch với diện tích cây xanh lớn, tạo không gian sống trong lành, yên tĩnh và thích hợp cho phát triển toàn diện gia đình cũng như nghỉ dưỡng. Tổng diện tích dành cho tiện ích nội khu lên đến 3,2 ha trong tổng diện tích 18 ha phân khu này.

The Icon

The Icon

The Icon

The Icon

The Icon

The Icon

The Icon

The Icon

The Icon

The Icon

Tiện ích The Icon

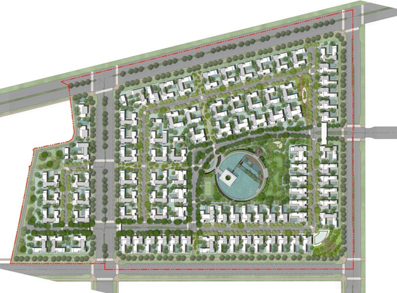
Mặt bằng - Thiết kế 

Phân khu The Icon Swan Park Đồng Nai có tổng diện tích khoảng 18 ha, quy hoạch chỉ 90 căn biệt thự và dinh thự cao cấp với diện tích từ 680 m2 đến 1.500 m2. Thiết kế phân khu tập trung vào sự khác biệt và sang trọng, gồm 3 mẫu nhà chính:

  • Mẫu L (Super Villa): 37 căn, diện tích đất 20x35m, diện tích xây dựng khoảng 680 m2, xây dựng 1 trệt 2 lầu, có hồ bơi và sân vườn riêng, thang máy nhập khẩu từ Thụy Sỹ.
  • Mẫu H (The Mansion): 49 căn, diện tích đất 30x35m, diện tích xây dựng lớn hơn, biệt thự dinh thự sang trọng.
  • Mẫu The Palace: 4 căn, diện tích đất khoảng 35x47m, biệt thự lớn nhất với thiết kế cao cấp bậc nhất.

Dự án được thiết kế bởi UMia (Ursa Minor Architects), công ty kiến trúc hàng đầu khu vực Châu Á Thái Bình Dương nên sở hữu phong cách nghệ thuật độc bản và chất lượng cao cấp cho từng sản phẩm biệt thự.

The Icon

The Icon

Mặt bằng The Icon

The Icon

The Icon

The Icon

The Icon

The Icon

The Icon

The Icon

The Icon

Biệt thự The Icon

The Icon

The Icon

Thiết kế biệt thự The Icon

The Icon

The Icon

The Icon

Thiết kế dinh thự The Icon

Hình ảnh thực tế 

Phân khu The Icon Swan Park đã được khởi công từ ngày 03/10/2018. Hiện khoảng 90% các căn biệt thự trong toàn dự án Swan Park đã hoàn thiện và đưa vào sử dụng, trong đó phân khu The Icon với các biệt thự siêu cao cấp cũng đã đạt tiến độ rất tốt, nhiều căn đã sẵn sàng bàn giao hoặc chuẩn bị bàn giao cho khách hàng trong năm 2025. Hạ tầng khuôn viên, tiện ích trong phân khu cũng được hoàn thiện đồng bộ.

The Icon

The Icon

The Icon

The Icon

The Icon

The Icon

The Icon

The Icon

The Icon

Hình ảnh thực tế dự án Swan Park và phân khu The Icon

Giá bán 

Biệt thự và dinh thự The ICON có giá chỉ từ 30 triệu đồng/m2, tức giá ban The Icon dao động trong khoảng từ 20 tỷ đến 40 tỷ đồng mỗi căn, tùy thuộc vào loại biệt thự và diện tích. Cụ thể:

  • Super Villa 700m2 giá từ 27 tỷ đồng/căn.
  • Mansion 1.050m2 từ 32 tỷ đồng/căn.
  • Mansion đối diện công viên triệu phú khoảng 47 tỷ đồng
  • The Palace (1.948,7m2) giá 83 tỷ đồng/căn.

Phương thức thanh toán được chủ đầu tư SwanCity triển khai linh hoạt, với booking ban đầu khoảng 200 triệu đồng cho mỗi căn (có hoàn lại trong vòng 30 ngày nếu không chọn được vị trí). Thanh toán trải dài từ 3 đến 4 năm và có ngân hàng bảo lãnh cho vay đến 70% giá trị sản phẩm.

Chủ đầu tư 

Chủ đầu tư phân khu The Icon Swan Park là Tập đoàn Swan City, trực thuộc tập đoàn China Fortune Land Development (CFLD) của Singapore, hợp tác cùng Tập đoàn Tín Nghĩa tại Việt Nam. Swan City là chủ đầu tư đáng tin cậy với các dự án quy mô lớn. 

Tại Việt Nam, SwanCity được biết đến là chủ đầu tư của đại đô thị Swan Park (941,5 ha) và SwanBay (200 ha) tại Nhơn Trạch, Đồng Nai. SwanCity có được giải thưởng International Property Award 2019–2020, trong các hạng mục như phát triển nhà ở / khu phức hợp tại Việt Nam dành cho SwanBay và SwanPark.

SwanCity định hướng phát triển các “thành phố đáng sống”, kết hợp giữa kiến trúc hiện đại, không gian xanh, tiện ích toàn diện và cộng đồng tinh hoa. Tập đoàn tập trung vào mô hình “Township Development”, tức là quy hoạch và quản lý toàn diện, từ khu dân cư, thương mại, giải trí đến giáo dục và hạ tầng. Mô hình này đã được áp dụng thành công tại Singapore, Trung Quốc, Malaysia và hiện triển khai mạnh tại Việt Nam.

Đánh giá 

Phân khu The Icon Swan Park là biểu tượng xa hoa của khu đô thị Swan Park tại Nhơn Trạch, Đồng Nai, dành riêng cho giới thượng lưu với chỉ 90 căn biệt thự và dinh thự siêu sang, diện tích đất rộng từ 680 đến 1.500 m2. Thiết kế độc đáo với hồ bơi riêng, sân vườn rộng và thang máy nhập khẩu từ Thụy Sỹ tạo nên không gian sống tiện nghi, đẳng cấp. Điểm nhấn tại The Icon là clubhouse sang trọng ở trung tâm phân khu, bao quanh bởi hồ bơi tràn viền và công viên rộng lớn, cung cấp hàng loạt tiện ích cao cấp như câu lạc bộ triệu phú, sân golf mini, spa, phòng gym và khu vui chơi trẻ em.

Vị trí đắc địa gần TP.HCM, tiện ích nội ngoại khu phong phú và môi trường sống xanh sạch trong lành, an ninh 3 lớp chặt chẽ giúp The Icon Swan Park trở thành lựa chọn hoàn hảo cho những ai tìm kiếm sự kết hợp giữa đẳng cấp và sự yên tĩnh.

Tuy giá bán thuộc phân khúc cao cấp, nhưng với tiềm năng tăng giá và giá trị bền vững, The Icon Swan Park được đánh giá là dự án đáng đầu tư và an cư hàng đầu tại khu Đông Sài Gòn.