Saigon Skyview là dự án khu căn hộ cao cấp nằm ngay trung tâm Quận 8, TP. Hồ Chí Minh, tọa lạc tại ngã tư Tạ Quang Bửu và Quốc lộ 50, phường 6, do Công ty Cổ phần Phát triển Địa ốc Sài Gòn 5 làm chủ đầu tư, phát triển bởi Tập đoàn Đất Xanh. Dự án được kỳ vọng mang đến không gian sống tiện nghi, hiện đại và có tiềm năng đầu tư tại khu vực Quận 8.




Phối cảnh dự án Saigon Skyview
- Tên dự án: Saigon Skyview
- Vị trí: Mặt đường Quốc lộ 50 và đường Tạ Quang Bửu, Phường 6, Quận 8, TP. Hồ Chí Minh
- Chủ đầu tư: Công ty CP Phát triển Địa ốc Sài Gòn 5
- Quy mô: Khoảng 4.606,5m2, cao 21 tầng với mật độ xây dựng thấp
- Loại hình: Bao gồm căn hộ ở và khối thương mại - dịch vụ (gồm 5-6 tầng trung tâm thương mại, rạp chiếu phim, hồ bơi, gym, v.v.)
- Số căn hộ: 276 căn, từ 62,44m2 đến 85,1m2
- Ngày khởi công: Tháng 3/2018
- Thời hạn sở hữu: Lâu dài
- Giá bán: Chỉ từ 62 triệu đồng/m2
Vị trí - Hạ tầng
Dự án Saigon Skyview tọa lạc tại vị trí đắc địa ở số 308 Quốc Lộ 50, phường 6, Quận 8, TP. Hồ Chí Minh, ngay ngã tư giao cắt giữa đường Tạ Quang Bửu và Quốc Lộ 50. Vị trí này nằm ở trung tâm hành chính và kinh tế của Quận 8, đối diện với Bến xe Quận 8 và Khu dân cư Bình Đăng, giúp cư dân dễ dàng di chuyển và kết nối với các quận trung tâm như Quận 1, Quận 5, Quận 7, Quận 10 trong khoảng 10-15 phút.
Dự án cũng tiếp giáp với các tuyến đường huyết mạch như Võ Văn Kiệt, Nguyễn Văn Linh, và Quốc Lộ 50, thuận tiện cho việc di chuyển về các khu vực trong và ngoài thành phố, cũng như các tỉnh miền Tây. Đây được xem là vị trí chiến lược, góp phần nâng cao giá trị sống và khả năng kết nối của Saigon Skyview với các tiện ích và khu vực lân cận.
- Phía Bắc giáp với Đường số 5 có lộ giới 20m
- Phía Nam giáp với Đường số 7 lộ giới 20m
- Phía Đông giáp với Quốc lộ 50 có lộ giới 40m
- Phía Tây giáp với Đường số 4 lộ giới 20m


Vị trí dự án Saigon Skyview
Tiện ích
Chung cư Saigon Skyview Quận 8 sở hữu hệ thống tiện ích nội khu hiện đại và đa dạng, đảm bảo cuộc sống tiện nghi cho cư dân. Tiện ích nội khu gồm hồ bơi tràn tầng 5 đạt chuẩn resort, khu vui chơi trẻ em rộng rãi và an toàn, vườn nướng BBQ cho những buổi tụ họp gia đình, rạp chiếu phim, phòng tập gym và yoga, cùng công viên cây xanh tươi mát tạo không gian sống xanh.
Dự án có trung tâm thương mại trải dài 5-7 tầng với đa dạng ngành hàng phục vụ nhu cầu mua sắm và giải trí. Hệ thống an ninh 24/24 với camera giám sát đảm bảo an toàn cho cư dân.
Ngoài ra, dự án được kết nối với nhà ga metro số 5 qua tầng hầm, thuận tiện đi lại. Ngoài tiện ích nội khu, cư dân còn dễ dàng tiếp cận nhiều tiện ích ngoại khu như chợ Bình Tây, siêu thị Coopmart, Trung tâm y tế, trường học, công viên, bệnh viện, và các cơ sở hành chính Quận 8 chỉ trong vài phút đi bộ hoặc lái xe.






Tiện ích nội khu, ngoại khu dự án Saigon Skyview
Mặt bằng - Thiết kế
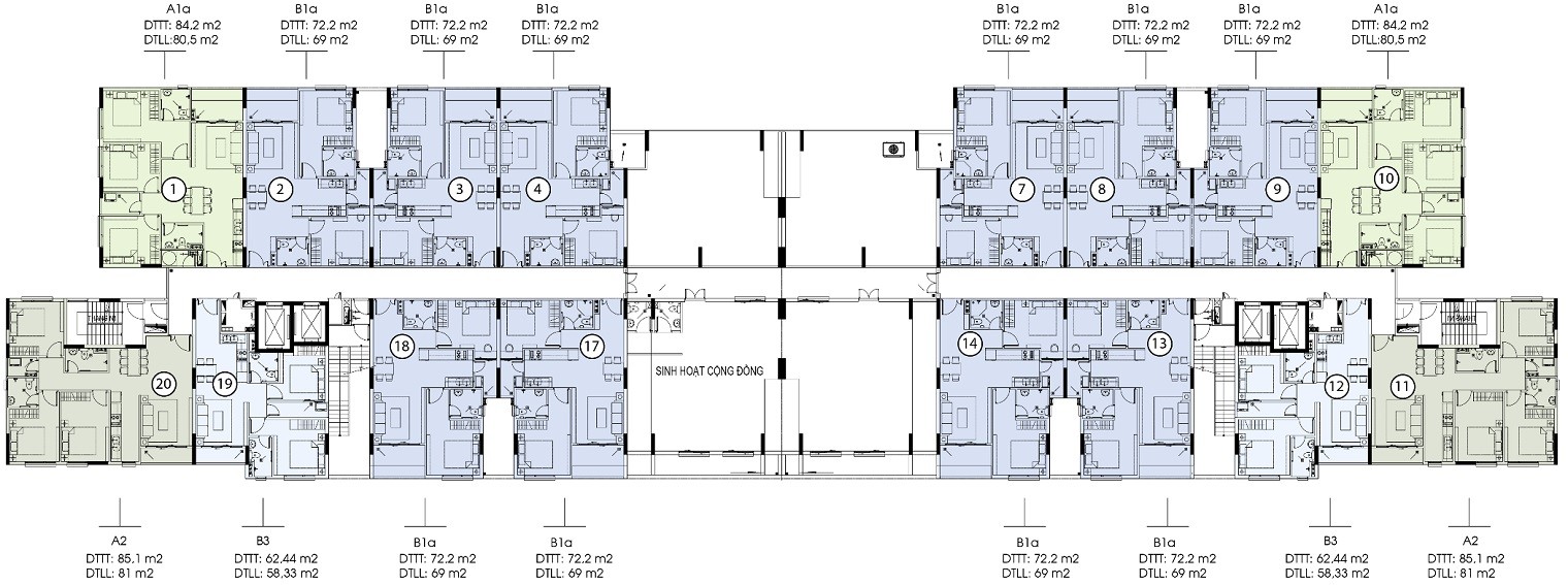
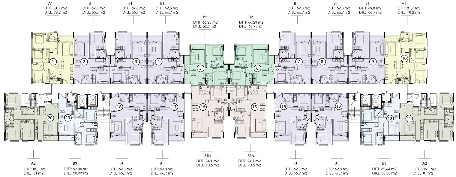
Dự án Saigon Skyview Quận 8 có tổng diện tích đất 4.606m2 với mật độ xây dựng 33,06%, gồm 1 tòa tháp cao 21 tầng (2 tầng hầm có đường thông qua hầm Ga Metro số 5, 5 tầng thương mại, 14 tầng căn hộ).
Tầng thương mại gồm shop-office, food court, rạp chiếu phim và trung tâm thương mại. Dự án cung cấp ra thị trường 276 căn hộ Các căn hộ được bố trí từ tầng 6 đến tầng 19, mật độ khoảng 20 căn/sàn.
Diện tích căn hộ đa dạng từ 62,44m2 đến 85,1m2, thiết kế 2 đến 3 phòng ngủ cùng 2 nhà vệ sinh, phù hợp với nhu cầu đa dạng của khách hàng. Thiết kế hiện đại, tối ưu công năng sử dụng và chú trọng môi trường sống xanh, tiện nghi cho cư dân.





Mặt bằng tầng tiện ích, tầng hầm dự án Saigon Skyview


Mặt bằng tầng 8

Mặt bằng tầng 9

Mặt bằng tầng 10 - 21






Thiết kế căn hộ Saigon Skyview
Giá bán
Giá bán căn hộ dự án Saigon Skyview Quận 8 hiện dao động từ khoảng 62 triệu đồng/m2, đây là mức giá khá hấp dẫn so với các dự án căn hộ cùng khu vực. Tổng giá trị một căn hộ thường từ khoảng 1,6 tỷ đồng trở lên, tùy thuộc vào diện tích, vị trí tầng và hướng view của căn hộ.
Chủ đầu tư
Chủ đầu tư dự án Saigon Skyview Quận 8 là Công ty Cổ phần Phát triển Địa ốc Sài Gòn 5 (Saigon 5). Dự án được phát triển bởi Tập đoàn Đất Xanh Miền Nam, với sự xây dựng của nhà thầu uy tín FBV và đơn vị quản lý dự kiến là Savills, một trong những đơn vị quản lý bất động sản hàng đầu hiện nay. Công ty Saigon 5 đã có nhiều kinh nghiệm trong lĩnh vực bất động sản với nhiều dự án như Saigon Skyview (Quận 8), Cao ốc Lương Thế Vinh (Tân Phú), Cao ốc Phước Long A (TP Thủ Đức),...
Tiến độ
Dự án Saigon Skyview Quận 8 được khởi công vào tháng 3/2018, và theo kế hoạch bàn giao nhà hoàn thiện cao cấp dự kiến vào quý I năm 2020, tuy nhiên có sự chậm trễ do một số vấn đề về pháp lý và giấy phép xây dựng, khiến dự án tạm thời ngưng thi công trong một thời gian. Tính đến cuối năm 2025, dự án đang tiếp tục thi công hoàn chỉnh các phần móng, đồng thời hoàn thiện các thủ tục pháp lý.
Hiện dự án đang trong giai đoạn hoàn thiện phần móng và phần hầm, với các hạng mục thương mại dịch vụ đang được phát triển tích cực.


Hình ảnh cập nhật tiến độ dự án Saigon Skyview tháng 10/2025
Đánh giá
Saigon Skyview Quận 8 là một trong những dự án căn hộ được đánh giá cao tại khu vực với vị trí đắc địa ngay ngã tư Tạ Quang Bửu – Quốc Lộ 50, trung tâm Quận 8. Dự án nổi bật với thiết kế hiện đại, mật độ xây dựng thấp, mang lại không gian sống thoáng đãng và nhiều ánh sáng tự nhiên cho từng căn hộ.
Dự án còn được tích hợp hệ thống tiện ích đa dạng và sở hữu giá bán cạnh tranh từ khoảng 62 triệu đồng/m2, phù hợp với nhiều đối tượng khách hàng tìm kiếm không gian sống tiện nghi, hiện đại và an toàn nhờ sự bảo lãnh pháp lý của Vietinbank.
Tổng thể, Saigon Skyview được đánh giá là dự án tiềm năng với vị trí thuận lợi, tiện ích đầy đủ và mức giá hấp dẫn cho thị trường căn hộ Quận 8.