Hiện tại dự án C22 Bộ Công An đã cất nóc và đang hoàn thiện bên trong, dự kiến bàn giao quý 2/2021. Đã có căn hộ mẫu để khách hàng thăm quan và cảm nhận.
Chủ nhật hàng tuần hỗ trợ cho cư dân lên thăm căn hộ thực tế, về tầm view cũng như chất lượng xây dựng của chủ đầu tư.
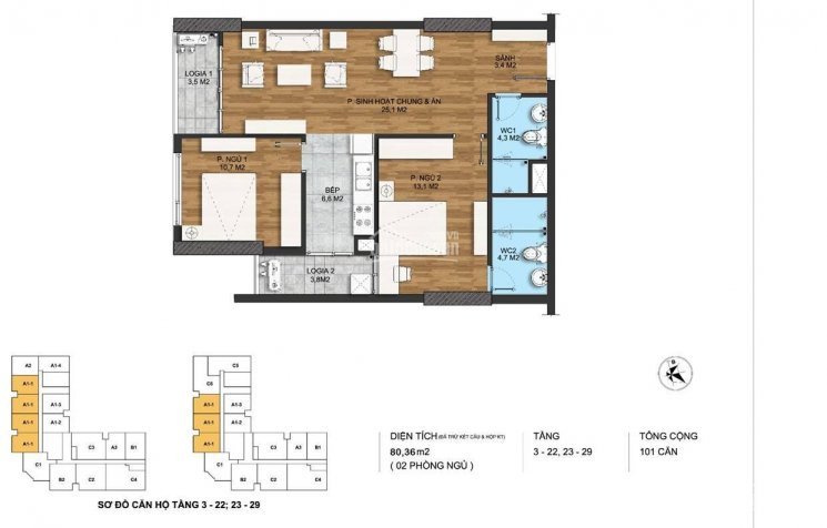
Với thiết kế tối ưu diện tích trong căn hộ, không góc chết, không khe hút, tất cả các phòng đều đón ánh sáng tự nhiên.
- Dự án có vị trí ngay tại ngã tư Thành Thái và Trần Thái Tông, thuộc phường Dịch Vọng, Quận Cầu Giấy, Hà Nội.
- Khu nhà ở cho Cán Bộ Chiến Sĩ Cục Cảnh Sát Bảo Vệ Bộ Công An.
- Diện tích linh hoạt: 80,76m2 , 86,54m2, 107,4m2, 120,42m2, 125,79m2,133m2, 154m2 ( 2 PN 4 PN )
- Vào tên trực tiếp hợp đồng, full nội thất nhập khẩu cao cấp: Sàn gỗ, trần thạch cao, điều hòa âm trần, thiết bị vệ sinh đầy đủ, bếp từ, hút mùi.
- Với 15 căn/ sàn đi 8 thang máy tốc độ cao. Chia thành 2 sảnh vô cùng sang trọng và lịch sự và rộng rãi.
- Đối diện công viên Cầu Giấy với hơn 10ha Hồ điều hòa và cây xanh.
- Dự án The Park Home sở hữu vị trí vàng, trung tâm quận Cầu Giấy, xung quanh là các văn phòng hạng A. Đặc biệt là các trường học quốc tế, liên cấp chuẩn quốc gia. Chợ và siêu thị xung quanh rất nhiều.
- Tiếp cận với các tuyến đường huyết mạch: Xuân Thủy - Cầu Giấy, đường Phạm Văn Đồng, Đường Láng, tới các tuyến cao tốc trên cao.
- Với diện tích cây xanh nhiều 10ha và công viên hồ điều hòa mang đến cho cư dân xung quanh có những khoảng không gian vô cùng thoáng, rộng, trẻ em có không gian vui chơi sau khi đi học về...
- Đối với bất động sản gần công viên thì giá trị bất đông sản gấp 30% so với các bất động sản ở khu khác, tuy nhiên ở The Park Home giá cả lại rất hợp lý cho những gia đình đang sinh sống và con cái học hành tại khu vực này.
- Chiết khấu ngay 4% khi khách hàng thanh toán sớm 95% GTCH.
- Chiết khấu 2% giá trị hợp đồng hoặc hỗ trợ lãi suất 0% đến khi bàn giao nhà cho khách hàng dùng phương án vay ngân hàng.
- Dự kiến bàn giao quý 2/2021.
- Sở hữu: Sổ hồng vĩnh viễn.
- Được hưởng toàn bộ tiện ích của tòa nhà: Gym, spa, siêu thị, sân vườn cây xanh chiếm diện tích đất của toàn dự án.
- Mọi thông tin chi tiết vui lòng liên hệ: 0948658856 (Mr. Hiếu TPKD)
Thông tin pháp lý: Sổ hồng
Tặng Xe Sh 70tr ,tầng Siêu đẹp Dự án C22 Bộ Công An, Vào Tên Trực Tiếp Hđ, Ck 4% Gthđ- Giá Tốt Nhât
Loại hình:
Bán
Căn hộ chung cư
Cầu Giấy - Hà Nội
Giá: Thương lượng - Diện
tích:
80m²
Địa chỉ: Dự án C22 Bộ Công an, Cầu Giấy, Hà Nội
Thông tin mô tả Căn hộ chung cư cần bán
Liên hệ người đăng
Nguyễn Đức Hiếu
0948658856Đặc điểm bất động sản
- Loại Bán Căn hộ chung cư
- Hình thức Cần bán
- Ngày đăng 16/10/2020
- Quận/Huyện Cầu Giấy - Hà Nội
ODT.VN là website chuyên cập nhật thông tin bất động sản, mua bán nhà đất, thông tin cho thuê nhà đất, là cầu nối giữa người mua – người bán, người cho thuê – người thuê thông qua nền tảng đăng tin trực tuyến hiệu quả. Chúng tôi không bán hàng trực tiếp, nếu có nhu cầu vui lòng liên hệ với người đăng tin Bán Căn hộ chung cư. Chúng tôi hoàn toàn không chịu trách nhiệm về bất cứ thông tin nào liên quan đến nội dung này