Happy Home Phố Hiến Hưng Yên là dự án nhà ở xã hội nổi bật tại phường Phố Hiến, TP. Hưng Yên, tỉnh Hưng Yên, do Công ty cổ phần Vinhomes làm chủ đầu tư.
Dự án được chính thức khởi công vào sáng 19/12 với tổng vốn đầu tư 6.000 tỷ đồng. Với quy mô lên tới 31,1 ha, Nhà ở xã hội Happy Home Phố Hiến Hưng Yên cung cấp ra thị trường khoảng 4.400 căn hộ chung cư và hơn 300 căn nhà ở liền kề, hứa hẹn trở thành biểu tượng mới cho phân khúc nhà ở giá rẻ nhưng chất lượng cao tại địa phương.
Happy Home được triển khai theo mô hình "full tiện ích", với mục tiêu đáp ứng nhu cầu nhà ở cho lao động thu nhập thấp tại các vùng ven đô thị lớn. Đây là dự án nhà ở xã hội chuyên biệt, tách bạch hoàn toàn với các dự án thương mại, mang sứ mệnh kiến tạo một cộng đồng cư dân văn minh, hiện đại ngay tại trung tâm thành phố Hưng Yên.




Phối cảnh dự án Happy Home Phố Hiến
- Tên dự án: Happy Home Phố Hiến
- Vị trí: Phường Phố Hiến, TP. Hưng Yên, tỉnh Hưng Yên
- Chủ đầu tư: Công ty Cổ phần Vinhomes (thuộc Tập đoàn Vingroup)
- Tổng diện tích: Khoảng 31,1 ha
- Mật độ xây dựng: Khoảng 35%
- Vốn đầu tư: 6.000 tỷ đồng
- Quy mô: 25 tòa chung cư, cung cấp khoảng 4.400 căn hộ
- Hình thức sở hữu: Sổ hồng/Sổ đỏ lâu dài.
Vị trí - Hạ tầng
Dự án Nhà ở xã hội Happy Home Phố Hiến tọa lạc tại phường Phố Hiến, thành phố Hưng Yên, tỉnh Hưng Yên. Đây là vị trí chiến lược, nằm ngay "trái tim" của vùng đất cửa ngõ Thủ đô với các ưu thế vượt trội:
- Kết nối giao thông hoàn hảo: Nằm trên trục kết nối chính giữa Quốc lộ 38B và tuyến cao tốc Hưng Yên – Thái Bình, kết nối dễ dàng với Quốc lộ 39A và đường Lê Thanh Nghị. Điều này giúp cư dân dễ dàng di chuyển đến trung tâm thành phố Hưng Yên, các khu công nghiệp lớn cũng như các tỉnh lân cận như Hà Nội, Hà Nam, Thái Bình.
- Tiếp giáp khu vực tri thức: Dự án liền kề với Khu đô thị Đại học Phố Hiến, và chỉ mất vài phút để tiếp cận các trường học chất lượng cao từ mầm non đến đại học như ĐH Chu Văn An, ĐH Sư phạm Kỹ thuật Hưng Yên, tạo điều kiện thuận lợi cho việc tiếp cận môi trường giáo dục chất lượng cao.
- Hệ tiện ích ngoại khu phong phú: Cư dân dễ dàng di chuyển đến Bệnh viện Đa khoa tỉnh Hưng Yên; và kế cận Chợ Phố Hiến, trung tâm thương mại, siêu thị lớn.
- Tiềm năng tăng giá: Vị trí này không chỉ phục vụ nhu cầu ở thực của người lao động tại các KCN mà còn đón đầu xu hướng đô thị hóa mạnh mẽ của thành phố Hưng Yên.


Vị trí dự án Happy Home Phố Hiến
Tiện ích
Điểm làm nên sự khác biệt của Chung cư Happy Home Phố Hiến chính là triết lý "full tiện ích" – tức là mọi thứ cư dân cần đều có ngay trong khuôn viên dự án. Vinhomes đầu tư hệ sinh thái tiện ích đầy đủ, tiện lợi và đảm bảo chất lượng sống tốt cho cộng đồng dân cư, bao gồm khu vui chơi dành riêng cho trẻ em, sân chơi thể thao, công viên xanh, trung tâm thương mại, trường học.
Cụ thể, dự án được trang bị:
- Không gian xanh và thư giãn: Công viên trung tâm và hồ điều hòa được ví như "lá phổi xanh" của dự án, nơi cư dân có thể tản bộ buổi sáng, tập thể dục, hay đơn giản là hít thở không khí trong lành sau một ngày làm việc mệt mỏi.
- Giáo dục nội khu: Nhà trẻ và mẫu giáo, tiểu học và trung học cơ sở được bố trí ngay trong dự án, giúp các bậc phụ huynh hoàn toàn yên tâm về việc học tập của con em mà không phải đưa đón quá xa.
- Thể thao – sức khỏe: Khu thể thao đa năng bao gồm phòng Gym, Yoga, sân bóng rổ và cầu lông phục vụ mọi lứa tuổi, mọi sở thích.
- Mua sắm và dịch vụ: Shophouse thương mại dịch vụ tầng đế đáp ứng toàn bộ nhu cầu mua sắm, ăn uống và các dịch vụ thiết yếu hàng ngày ngay dưới chân tòa nhà.
- An ninh 24/7: Hệ thống camera giám sát kết hợp đội ngũ bảo vệ chuyên nghiệp hoạt động liên tục, đảm bảo an toàn tuyệt đối cho cư dân.
- Xe buýt điện kết nối: Vinhomes triển khai hệ thống xe buýt điện Vinbus kết nối các khu nhà ở xã hội với các nút giao thông quan trọng, mang đến sự đi lại thuận tiện cho cư dân.
- Khu vực để xe: 4 bãi đỗ xe có tổng diện tích khoảng 14.133,3m2, xây tối đa 5 tầng.
Các tiện ích này không chỉ đáp ứng nhu cầu sinh hoạt hàng ngày mà còn nâng tầm chất lượng sống cho cư dân, với không gian mở rộng rãi và thân thiện với môi trường. Dự án còn có bãi đỗ xe lớn và hệ thống an ninh hiện đại, tạo môi trường sống an toàn, tiện nghi ngay giữa trung tâm thành phố.
Về tiện ích ngoại khu, cư dân chỉ mất vài phút để di chuyển tới các cơ quan hành chính tỉnh, Chợ Gạo, hồ Bán Nguyệt, bệnh viện đa khoa tỉnh và hệ thống các ngân hàng lớn.



Tiện ích dự án Happy Home Phố Hiến
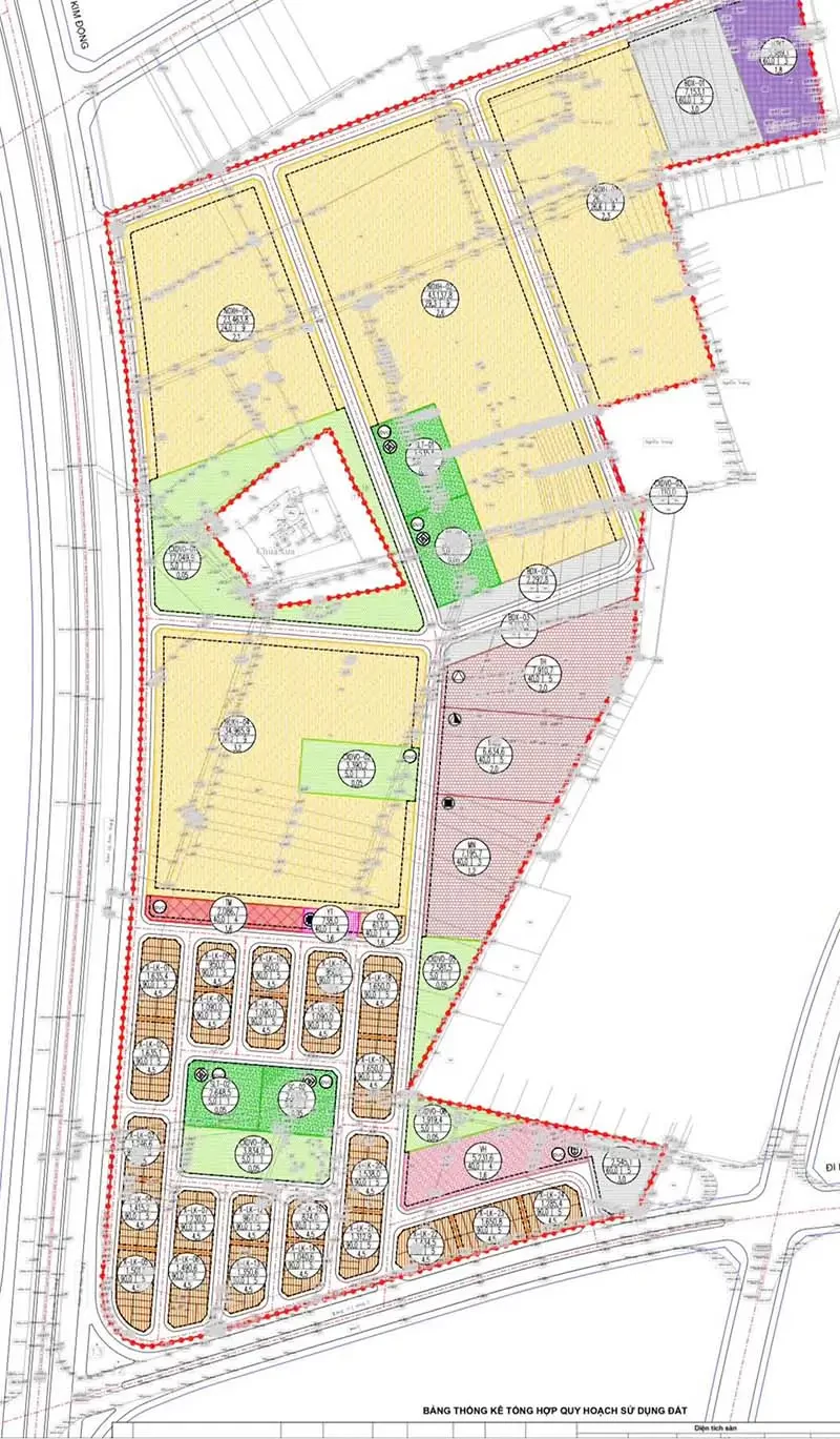
Mặt bằng - Thiết kế
Dự án Happy Home Phố Hiến được quy hoạch trên khu đất có tổng diện tích 311.266,9m2, trong đó 137.373,7m2 là đất nhà ở xã hội (gồm 112.453,4m2 đất xây chung cư cao tầng và 24.920,3m2 là đất NOXH bán thương mại liền kề).
Dự án gồm 25 tòa chung cư cao 9 tầng có một hầm, dự kiến cung cấp 4.400 căn hộ, đáp ứng nhu cầu ở cho hơn 9.740 người. Ngoài khối chung cư là trục xương sống của dự án, dự án còn cung cấp 303 căn nhà ở xã hội bán thương mại liền kề, mật độ xây dựng tối đa 90%.
Thiết kế căn hộ được chú trọng tối ưu hóa công năng sử dụng theo từng nhóm đối tượng:
Các căn hộ tại dự án có thiết kế thông minh, diện tích linh hoạt từ 45m2 đến 70m2, phù hợp với tiêu chuẩn nhà ở xã hội nhưng vẫn đảm bảo chất lượng tương đương căn hộ thương mại.
Trong đó, căn hộ 1 phòng ngủ (45–50m2) phù hợp với người độc thân hoặc cặp vợ chồng trẻ với chi phí hợp lý, dễ bố trí nội thất; căn hộ 2 phòng ngủ (55–70m2) là lựa chọn lý tưởng cho gia đình có 1–2 con.
Mỗi căn hộ được thiết kế đảm bảo ánh sáng tự nhiên, thông gió tốt và tạo ra sự kết nối giữa các thành viên trong gia đình.


Mặt bằng Happy Home Phố Hiến


Căn hộ Happy Home Phố Hiến
Giá bán
Giá bán nhà ở xã hội tại các dự án tương tự ở Phố Hiến được Sở Xây dựng Hưng Yên phê duyệt khoảng 20,9 triệu đồng/m2 (đã gồm 5% VAT, chưa phí bảo trì), tương đương từ 1 tỷ đến 1,6 tỷ đồng/căn tùy diện tích 50-77 m2. Với chính sách hỗ trợ từ chủ đầu tư Vingroup, giá cả cạnh tranh so với khu vực, kèm gói vay ưu đãi dành cho đối tượng thu nhập thấp. Giá thuê mua khoảng 396.000 đồng/m²/tháng, giúp nhiều gia đình dễ dàng tiếp cận an cư.
Đặc biệt, khách hàng được hỗ trợ gói lãi suất ưu đãi, thanh toán linh hoạt theo tiến độ thi công giúp chủ động tài chính cá nhân. Tuy nhiên, do đây là nhà ở xã hội, chủ đầu tư chưa công bố bảng giá chính thức cho riêng dự án Phố Hiến, khách hàng nên liên hệ trực tiếp để nhận thông tin cập nhật mới nhất.
Lưu ý: Để mua nhà ở xã hội Happy Home Phố Hiến, người mua cần đáp ứng đúng đối tượng và điều kiện theo Luật Nhà ở 2023 và Nghị định 100/2024/NĐ-CP (chưa có nhà hoặc diện tích bình quân dưới 15m²/người, thu nhập không quá 20 triệu đồng/tháng với người độc thân hoặc 40 triệu đồng/tháng với cặp vợ chồng).
Chủ đầu tư
Chủ đầu tư dự án là Tập đoàn Vingroup (Công ty Cổ phần Vinhomes). Vinhomes là thành viên của Tập đoàn Vingroup – tập đoàn kinh tế tư nhân lớn nhất Việt Nam, sở hữu hệ sinh thái khép kín từ bất động sản, giáo dục (Vinschool), y tế (Vinmec), đến ô tô điện (VinFast). Trong lĩnh vực bất động sản, Vinhomes đã phát triển hàng chục đại đô thị trên toàn quốc với hàng trăm nghìn căn hộ bàn giao, trở thành thương hiệu bất động sản số một Việt Nam về quy mô và uy tín.
Vingroup đã công bố triển khai chuỗi dự án nhà ở xã hội mang thương hiệu Happy Home tại 7 tỉnh, thành trên cả nước. Với năng lực tài chính mạnh, kinh nghiệm dày dặn và cam kết bền vững, Vinhomes là chủ đầu tư đủ sức đảm bảo Happy Home Phố Hiến hoàn thành đúng hẹn, đúng chất lượng.
Tiến độ
Dự án Nhà ở xã hội Happy Home Phố Hiến Hưng Yên đã chính thức được khởi công vào ngày 19/12/2025.
Hiện tại (tháng 2/2026): Công tác giải phóng mặt bằng và thi công hạ tầng kỹ thuật đang được đẩy mạnh.
Dự kiến: Dự án sẽ triển khai trong vòng 24 tháng kể từ ngày giao đất chính thức, đặt mục tiêu bàn giao những căn hộ đầu tiên vào khoảng cuối năm 2027 hoặc đầu năm 2028.

Lễ khởi công dự án Happy Home Phố Hiến
Đánh giá
Odt.vn nhận xét Happy Home Phố Hiến là một trong những dự án nhà ở xã hội đáng chú ý nhất tại khu vực phía Bắc. Điểm cộng lớn nhất của dự án nằm ở sự kết hợp hiếm có giữa ba yếu tố: vị trí trung tâm, tiện ích đầy đủ, và giá bán trong tầm tay.
Không phải ngẫu nhiên mà Happy Home được kỳ vọng sẽ góp phần tái định nghĩa chuẩn mực về nhà ở xã hội mới tại Việt Nam, thay đổi hẳn những định kiến về chất lượng xây dựng kém, thiếu thốn tiện ích hay chất lượng sống chưa cao.
Với chủ đầu tư uy tín hàng đầu là Vinhomes, pháp lý đã hoàn thiện, vị trí đắc địa ngay tại phường Phố Hiến, trung tâm thành phố Hưng Yên, cùng hệ thống tiện ích nội khu khép kín, Happy Home Phố Hiến là lựa chọn rất xứng đáng cho người lao động, công nhân, viên chức tại Hưng Yên và các tỉnh lân cận đang có nhu cầu an cư thực sự.