Golden Boulevard (tên pháp lý: Khu dân cư TDC Hòa Lợi) là khu nhà phố liền kề và shophouse thương mại sang trọng, hiện đại với quy mô 168 căn, tọa lạc ngay trên đại lộ Lê Lợi, trung tâm thành phố mới Bình Dương.
Dự án được phát triển bởi Công ty CP Kinh doanh và Phát triển Bình Dương (Becamex TDC) phối hợp với Global Property, hướng đến phục vụ nhu cầu an cư, kinh doanh và đầu tư bền vững. Mang màu sắc kiến trúc Địa Trung Hải tinh giản, Khu dân cư TDC Hòa Lợi đề cao không gian sống xanh, thoáng đãng và tiện nghi hoàn chỉnh, tạo nên môi trường sống lý tưởng và cơ hội sinh lời hấp dẫn.

Phối cảnh Golden Boulevard
- Dự án: Golden Boulevard
- Tên pháp lý: Khu dân cư TDC Hòa Lợi
- Vị trí: Đại lộ Lê Lợi, phường Bình Dương, TP. Hồ Chí Minh
- Chủ đầu tư: Công ty CP Kinh doanh và Phát triển Bình Dương (Becamex TDC)
- Sản phẩm: 168 căn nhà phố liền kề và shophouse 2 mặt tiền
- Pháp lý: hoàn chỉnh đầy đủ
Vị trí - Hạ tầng
Golden Boulevard tọa lạc tại Khu dân cư Hòa Lợi, thuộc Khu Liên hợp Công nghiệp – Dịch vụ – Đô thị Bình Dương (Thành phố mới Bình Dương), nổi bật với vị trí vàng mặt tiền đại lộ Lê Lợi, phường Bình Dương, TP. Thủ Dầu Một, thành phố mới Bình Dương. Đây là khu vực được quy hoạch theo hướng đô thị thông minh và phát triển bền vững.
Vị trí này kết nối thuận tiện với các trục giao thông huyết mạch như đường NH19, tỉnh lộ DT 741, Quốc lộ 13, các tuyến Vành đai 3 - Vành đai 4, và đặc biệt là tuyến Cao tốc TP.HCM – Thủ Dầu Một – Chơn Thành, giúp cư dân dễ dàng di chuyển đến các khu công nghiệp lớn như VSIP II, Đồng An 2, MapleTree, Mỹ Phước 1-3, đồng thời tiếp cận nhanh các tiện ích ngoại khu như trung tâm hành chính, siêu thị AEON Mall, WTC Gateway và các trường quốc tế.
Lợi thế vị trí giúp dự án Golden Boulevard Bình Dương gia tăng giá trị theo thời gian, phù hợp cho cả mục đích an cư và đầu tư sinh lời dài hạn nhờ hạ tầng phát triển và giao thông đồng bộ.

Vị trí dự án Golden Boulevard
Tiện ích
TDC Golden Boulevard được quy hoạch với mảng xanh bao phủ khắp không gian sống, mang lại sự bình yên và trong lành. Ngoài ra, dự án còn có khu dạo bộ, không gian sinh hoạt cộng đồng thân thiện, khu vui chơi trẻ em, bãi đỗ xe rộng rãi, an ninh khép kín 24/7 và hệ thống điện nước, chiếu sáng hiện đại.
Chỉ trong vòng bán kính chưa đầy 10 phút di chuyển, cư dân dễ dàng tiếp cận với toàn bộ tiện ích trọng yếu của Thành phố mới Bình Dương như:
- Trung tâm Hành chính tỉnh
- Khu hành chính
- Ga metro
- Công viên trung tâm TP Mới
- Bệnh viện Đa khoa 1.500 giường
- Các trường Đại học Quốc tế Miền Đông, Ngô Thời Nhiệm
- Các khu công nghiệp lớn…






Tiện ích bao quanh dự án Golden Boulevard
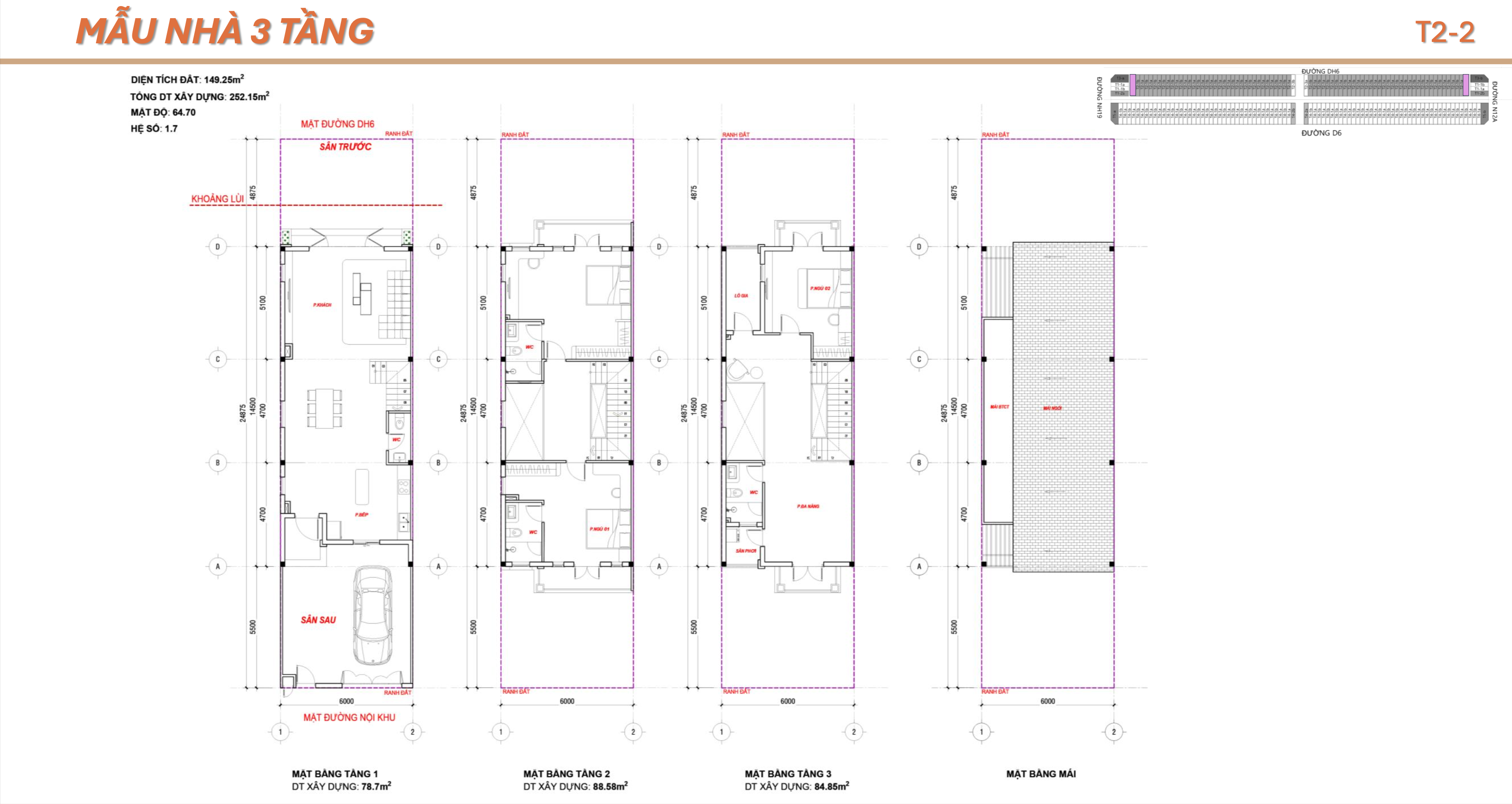
Mặt bằng - Thiết kế
Dự án Golden Boulevard TP Thủ Dầu Một - Bình Dương có tổng diện tích khoảng 12.168,5 m2 với tổng số lượng sản phẩm hữu hạn 168 căn. Dự án có phong cách thiết kế mang âm hưởng Địa Trung Hải hiện đại và bền vững, với gam màu xanh trắng chủ đạo, tạo cảm giác mát mẻ, tươi mới và sang trọng.
Các căn nhà phố, shophouse được thiết kế theo mô hình 2 mặt tiền, tối ưu hóa công năng sử dụng, vừa để ở vừa thuận tiện cho việc kinh doanh, khai thác lợi thế thương mại.
Dự án cung cấp hai loại hình sản phẩm chính:
- 84 căn nhà phố liền kề 1 trệt 2 lầu (3 tầng) diện tích 93m2 - 172m2, và diện tích sử dụng (GFA) là 197 - 260,5m2
- 84 căn shophouse thương mại 1 trệt 3 lầu (4 tầng) diện tích 84 - 107m2 và diện tích sử dụng (GFA) là 280 - 317m2
Dự án được hoàn thiện bên ngoài, thô bên trong, tạo điều kiện cho chủ nhân linh hoạt thiết kế nội thất theo sở thích và mục đích sử dụng.










Mặt bằng dự án Golden Boulevard













Nhà mẫu và nội thất dự án Golden Boulevard
Giá bán
Giá bán dự kiến của Golden Boulevard rất cạnh tranh và phù hợp với phân khúc nhà phố liền kề hiện đại:
- Nhà phố 3 tầng: từ 4,2 - 4,5 tỷ đồng/căn
- Shophouse 4 tầng: từ 7,2 - 7,5 tỷ đồng/căn
Giá bán này đi kèm pháp lý hoàn chỉnh, chính sách thanh toán linh hoạt, sổ hồng riêng từng căn và được MB Bank bảo chứng, mang lại sự an tâm cho khách hàng đầu tư và an cư.
Chủ đầu tư
Chủ đầu tư của dự án Golden Boulevard là Công ty Cổ phần Kinh doanh và Phát triển Bình Dương (Becamex IDC). TDC Becamex là một đơn vị uy tín với hơn 20 năm kinh nghiệm trong lĩnh vực đầu tư và phát triển bất động sản tại Bình Dương, đã triển khai thành công nhiều dự án lớn, đảm bảo về mặt pháp lý và tiến độ xây dựng.
Việc hợp tác với Global Property trong phát triển dự án tạo nên sự uy tín và chất lượng cao cho Golden Boulevard, đảm bảo đáp ứng các tiêu chuẩn xây dựng Việt Nam về an toàn và tiện nghi.
Tiến độ
Hiện tại, Golden Boulevard Thủ Dầu Một Becamex TDC đã hoàn thiện về mặt pháp lý và hoàn thành các phần hạ tầng cơ bản. Chủ đầu tư đang đẩy nhanh tiến độ xây dựng các căn nhà, đảm bảo tiến độ bàn giao và đưa cư dân vào sinh sống trong thời gian sắp tới.



Hình ảnh thực tế tiến độ dự án Golden Boulevard tháng 11/2025
Đánh giá
Golden Boulevard được đánh giá là dự án nhà phố liền kề và shophouse nổi bật ở trung tâm thành phố mới Bình Dương, hội tụ các lợi thế vị trí, tiện ích hiện đại và tiềm năng gia tăng giá trị bền vững. Thiết kế kiến trúc Địa Trung Hải hiện đại, không gian sống xanh và thoáng đãng giúp nâng cao chất lượng cuộc sống. Giá bán hợp lý cùng sự đảm bảo pháp lý và uy tín chủ đầu tư là những điểm cộng lớn cho khách hàng mua ở và đầu tư. Đây là một lựa chọn sáng giá trong phân khúc bất động sản khu vực đang phát triển nhanh tại Bình Dương.